Alle Fotos anzeigen

Geräumige 2-Zimmer-Wohnung mit modernem Duschbad und Balkon in Erfurt

99096 Erfurt
Wohnung
980 € Kaltmiete
1.320 € Warmmiete
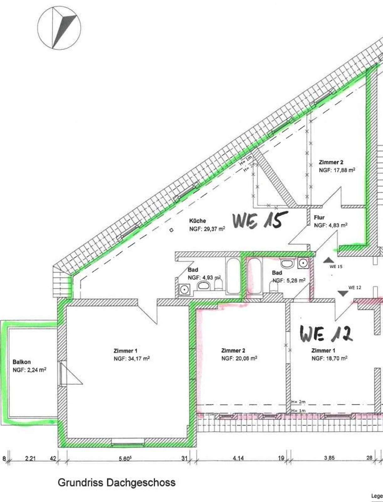
101 m² Wohnfläche
2 Zimmer
Wohnfläche 101 m²
Baujahr 1940
Zimmer 2
Etage 3
Objektbeschreibung
Das im Jahr 1940 erbaute Mehrfamilienhaus besteht aus insgesamt 10 Wohneinheiten.
Ausstattung
-gemütlicher Schlafraum
-geräumiger Wohnbereich mit Balkonzugang
-modernes Bad mit Dusche inkl. Duschkabine
-Anschlussmöglichkeit für eine Waschmaschine
-Küche (gängige Anschlussmöglichkeiten sind gegeben)
-Flur mit Nische (ideal für einen Schuhschrank)
-Parkettböden in allen Räumen (außer Bad)
-geweißte Räume
-Abstellraum im Keller
Lagebeschreibung
Das Objekt befindet sich an der Grenze der Brühlervorstadt zur Löbervorstadt und liegt im Südwesten Erfurts. Die Altstadt, der Haupt- und Einkaufsbahnhof, das Steigerwaldstadion sowie die Eissporthalle sind gut zu Fuß zu erreichen (weniger als 2 KM Entfernung). Wer gerne in die Natur möchte, kann von der Nähe zum Erfurter Steigerwald profitieren.
Lage